Espace propriétaire
fr

Votre recherche

Nouveauté
Andernos-les-Bains (33510)

5 pièces - 110 m²

Maison contemporaine 4 chambres Andernos-les-Bains

532 000 €
Ref : A1067
Découvrir le bien
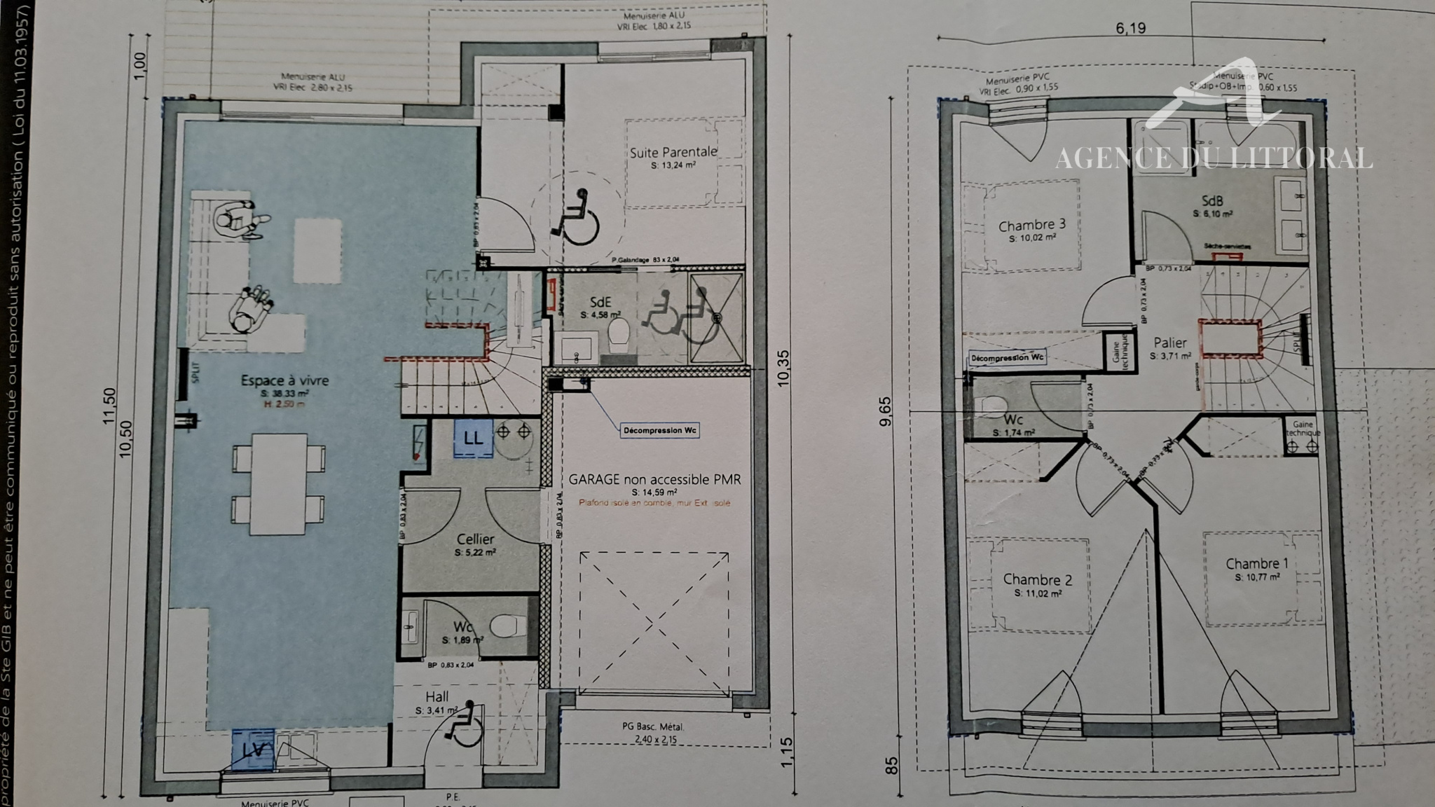
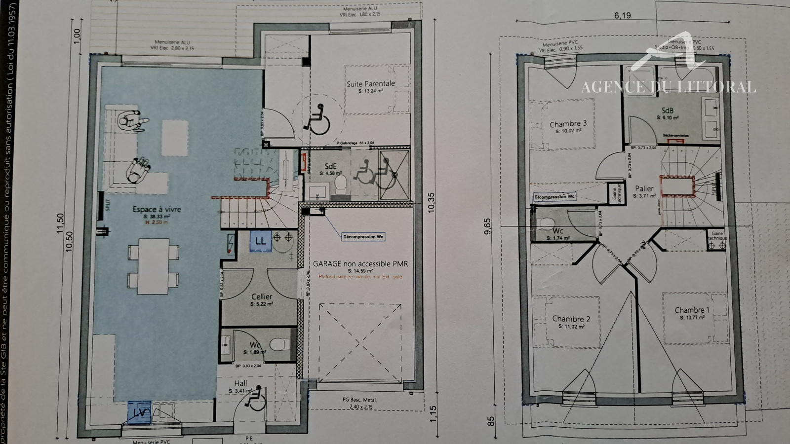
  • L'agence du Littoral vous propose de découvrir cette maison contemporaine de 2023 située dans une impasse au cœur d'Andernos-les-Bains proche de la plage et piste cyclable. Cette maison mitoyenne d'un côté par le garage offre une surface habitable de 110 m² sur un terrain de 237 m². Au rez-de-chaussée, vous trouverez une entrée avec WC, une vaste pièce à vivre lumineuse avec cuisine équipée et aménagée, donnant accès à un cellier et à une terrasse en bois exotique exposée ouest. La suite parentale au rez-de-chaussée ouvrant sur la terrasse dispose d'une salle d'eau avec WC. À l'étage, un palier dessert trois chambres, une salle de bain avec douche et baignoire, un WC séparé, ainsi qu'un second cellier. Le garage attenant d'environ 15 m² complète ce bien. La maison est équipée de la climatisation dans la pièce à vivre et à l'étage.Idéale pour une famille à la recherche de confort et de modernité, dans un environnement calme et sécurisé.
TRAD_ZEPHYR_Caracteristique TRAD_ZEPHYR_Valeurs
Code postal 33510
surface terrain 237 m²
Nombre de chambre(s) 4
Nombre de pièces 5
TRAD_ZEPHYR_Caracteristique TRAD_ZEPHYR_Valeurs
Nb de salle de bains 1
Nb de salle d'eau 1
Cuisine Américaine
Type de cuisine Equipée
Mode de chauffage Climatisation
Type de chauffage Air pulsé
Format de chauffage Individuel
Interphone OUI
Terrasse OUI
Murs mitoyens 1
Nombre de garage 1
Exposition Est-Ouest
Année de construction 2023
TRAD_ZEPHYR_Caracteristique TRAD_ZEPHYR_Valeurs
Copropriété NON
TRAD_ZEPHYR_Caracteristique TRAD_ZEPHYR_Valeurs
Prix de vente honoraires TTC inclus 532 000 €
Prix de vente honoraires TTC exclus 509 000 €
Honoraires TTC à la charge acquéreur 4,52 %
Rez de chaussée
entrée 3.41 m²

salon/sejour 38.6 m²

cellier 5.22 m²

chambre 13.24 m²

chambre 10.02 m²

chambre 11.02 m²

chambre 10.77 m²

salle d'eau 4.58 m²

salle de bain 6.1 m²

palier 3.71 m²

WC 1.89 m²

WC 1.74 m²

garage 14.59 m²

terrasse 28 m²

DPE GES
  • Commerces et santé
  • Loisirs
  • Ecoles
  • Transports
  • Pratique
Contacter pour ce bien
L'agence
Téléphone 0556820268
Adresse
151, boulevard de la République 33510 Andernos-les-Bains

* Champ obligatoire

Les informations recueillies sur ce formulaire sont enregistrées dans un fichier informatisé par La Boite Immo agissant comme Sous-traitant du traitement pour la gestion de la clientèle/prospects de l'Agence / du Réseau qui reste Responsable du Traitement de vos Données personnelles. La base légale du traitement repose sur l'intérêt légitime de l'Agence / du Réseau. Elles sont conservées jusqu'à demande de suppression et sont destinées à l'Agence / au Réseau. Conformément à la loi « informatique et libertés », vous disposez des droits d’accès, de rectification, d’effacement, d’opposition, de limitation et de portabilité de vos données. Vous pouvez retirer votre consentement à tout moment en contactant directement l’Agence / Le Réseau. Consultez le site https://cnil.fr/fr pour plus d’informations sur vos droits. Si vous estimez, après avoir contacté l'Agence / le Réseau, que vos droits « Informatique et Libertés » ne sont pas respectés, vous pouvez adresser une réclamation à la CNIL. Nous vous informons de l’existence de la liste d'opposition au démarchage téléphonique « Bloctel », sur laquelle vous pouvez vous inscrire ici : https://www.bloctel.gouv.fr Dans le cadre de la protection des Données personnelles, nous vous invitons à ne pas inscrire de Données sensibles dans le champ de saisie libre.
Ce site est protégé par reCAPTCHA, les Politiques de Confidentialité et les Conditions d'Utilisation de Google s'appliquent.

Découvrir nos outils